Springe zum Hauptinhalt Skip to main navigation Skip to site search

Sicherheit durch allgemeine Bauartgenehmigung

Führen Abgasleitungen von Wärmeerzeugern direkt in die Senkrechte, ohne weitere Brandschutzabschnitte zu durchqueren, gelingt die Planung und Umsetzung in der Regel problemlos. Bei komplexen Bausituationen, etwa der Installation von Netzersatzanlagen oder BHKW, wird die bautechnisch sinnvolle Abgasführung sehr viel schwieriger. Dann sind zum Beispiel Verbindungsleitungen durch mehrere Räume wie Keller oder Tiefgaragen zu führen. Auch bei diesen Konstellationen müssen die Anforderungen zum baulichen Brandschutz explizit erfüllt werden.

An dieser Stelle kommt das Leichtbausystem Future Therm für Verbindungsleitungen ins Spiel. Schräder Abgastechnologie bietet dafür den Nachweis der Feuerwiderstandsklasse F 90. Das Deutsche Institut für Bautechnik DIBt hat im Juni 2024 unter der Nummer Z-7.4-3564 die allgemeine Bauartgenehmigung erteilt. Zugrunde liegen dabei die Kriterien der DIN EN 1366-13: 2019-09. Diese Norm legt ein Verfahren zur Bestimmung der Feuerwiderstandsdauer für Abgasanlagen, Schächte von Abgasanlagen oder Durchführungselemente als Teil einer Abgasanlage unter standardisierten Brandbedingungen fest. Nachdem Future Therm waagrecht alle Kriterien erfüllt, lassen sich solche Verbindungsleitungen jetzt zuverlässig erstellen.

Pluspunkte des Leichtbausystems

Future Therm zählte bereits vor diesem Schritt zu den Optionen, mit denen selbst anspruchsvolle Bauvorhaben brandschutzseitig korrekt realisiert werden konnten. Dabei waren in der Regel der zuständige Bezirksschornsteinfeger, ein Brandschutzsachverständiger oder Institutionen der unteren bzw. oberen Baubehörde einzubeziehen. Grundsätzlich eignet sich das zertifizierte Leichtbausystem dafür, im Bestand und im Neubau platzsparende Abgasanlagen einzubauen und verschiedene Wärmeerzeuger anzuschließen.

Auch bei Abgas­leitungen durch mehrer Räume müssen Brandschutz­anforderungen erfüllt werden.

Schräder kann sein Leichtbausystem nun mit der zertifizierten waagrechten Verbindungsleitung zur Verfügung stellen. Der Schacht selbst wird aus 45 mm starken Thermax-SL-Wärmedämmplatten hergestellt. Ergänzt wird das bewährte Schräder-Abgassystem Future-C mit und ohne Dämmung in den Rohrdurchmessern DN 150 bis 450. Alternativ verwendet werden dürfen folgende Anlagen: Für die Bauart doppelwandige metallische Systemabgasanlagen mit innen liegender Dämmung, Steckverbindungen und kreisförmigem lichtem Querschnitt bis zu 450 mm ist dies der Typ „ICS 5000“ mit der Leistungserklärungsnummer Nr. 007-DOP 2018-09-27 oder Nr. 008-DOP-2018-09-27 bzw. Typ „HP 5000“ mit der Leistungserklärungs-Nummer 019-DOP-2013-06-24 oder 020-DOP-2013-06-24 vom 6. März 2020 nach DIN EN 1856-15. Darüber hinaus müssen Form und Maße sowie Einzelheiten der Formgebung der Kompensatoren den Angaben der Anlage 1 der allgemeinen Bauartgenehmigung entsprechen.

Unter diesen Voraussetzungen erreicht eine solche Anlage die Feuerwiderstandsklasse LA 90. Die Abgasführung kann mit und ohne Ummantelung des Edelstahlrohrs umgesetzt werden. Die Ausführung hängt von der Berechnung der Temperatur ab. In jedem Fall muss ein Ringspalt von 30 mm bestehen bleiben. Von Vorteil bei der Umsetzung von Bauprojekten ist zudem die Montage, das geringe Gewicht und die Eignung für alle Regelfeuerstätten.

Brandprüfung war erforderlich

Um so weit zu kommen, war eine Prüfung des Materialprüfungsamtes (MPA) notwendig. Im Brandprüfzentrum Erwitte konnten die entsprechenden Versuchsanordnungen aufgebaut und umgesetzt werden. Dazu standen die bis zu vier mal fünf Meter großen Prüföfen zur Verfügung, um die waagrechten Verbindungsleitungen einem simulierten voll entwickelten Brand auszusetzen. Als Energieträger wird Heizöl EL oder Gas genutzt. Zahlreiche Messstellen lieferten Daten, die das Verhalten der Future-Therm-Verbindungsleitungen aufzeigten. Die DIN EN 1366-13 legt für die Prüfung alle relevanten Details wie Temperaturen, Dauer usw. fest. Dabei wurden sämtliche Komponenten einbezogen. Sie sind als Stecksystem mit inneren und äußeren Flachstreifen aus Vermiculite ausgeführt, die Verbindung wird zusätzlich mit einem Brandschutzkleber verklebt.

Auf die richtige Befestigung ist zu achten.

Das ist für Bauvorhaben wichtig

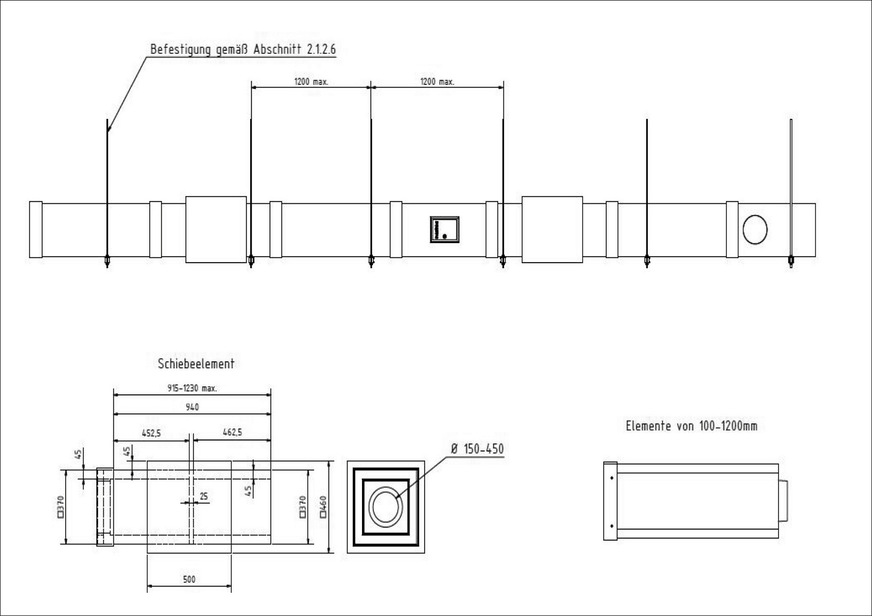
Bei der Planung sind für das System Future Therm waagrecht einige Punkte zu beachten. Die maximale Elementlänge der rechteckigen Schächte beträgt 1.000 mm und der maximale lichte Durchmesser 510 × 510 mm. Die waagrechte Verbindungsleitung ist geprüft für Überdruckanlagen, etwa Blockheizkraftwerke. Sie weist mit H1 (entspricht 5.000 Pa) die höchste Anforderungsklasse auf. Die Zentrierung der waagrechten Abgasleitung wird mit inneren Abstützungen sichergestellt.

Zudem ist die Befestigung der waagrechten Leitungen im Auge zu behalten. Sie müssen an feuerbeständigen Decken mithilfe der brandschutztechnisch geprüften und feuerbeständigen Abhängungen mit einem maximalen Befestigungsabstand von 1.200 mm fixiert werden. Für die Future Therm-Elemente sind Gewindestangen M 10 und C-Schienen als Unterkonstruktion zu nutzen, sie waren jeweils Teil der Brandprüfung.

Unterstützung bei der Umsetzung bietet auch das Unternehmen Schräder Abgastechnologie. Die Fachleute begleiten die Entscheider und Planer, damit die Abgastechnik den Brandschutz in jedem Punkt erfüllt. Vorab lassen sich zum Beispiel folgende Faktoren untersuchen:

• mögliche Standorte der Feuerstätte(n)

• die Brandabschnitte und ihre Abschottung

• der Übergang von Feuerstätte zur Abgasleitung

• Wanddurchbrüche und ihre Dämmung

• Details zum Wechsel waagrecht zu senkrecht

• der Platzbedarf der Abgastechnik

Je mehr Details geklärt und in ein Konzept eingebracht werden, umso besser funktioniert die Umsetzung im konkreten Bauvorhaben.

Bauteil für schwierige Projekte

Mit der vom DIBt zugelassenen Verbindungsleitung Future Therm waagrecht steht Planern und anderen Verantwortlichen ein Bauteil für schwierige Projekte zur Verfügung. Es ergänzt das Leichtbausystem aus dem Hause Schräder Abgastechnologie und punktet mit seiner Flexibilität. Anspruchsvolle Heiz- und Abgastechnik kann damit normgerecht installiert werden.

Die Verbindungsleitung verläuft an der Decke und war mit einem 90-Grad-Bogen zu verlegen – geschützt von Future Therm waagrecht.

Foto: Abgaskontor GmbH

Die Verbindungsleitung verläuft an der Decke und war mit einem 90-Grad-Bogen zu verlegen – geschützt von Future Therm waagrecht.
Details aus der allgemeinen Bauartgenehmigung von Future Therm waagrecht – so kann eine Abgasführung ausgeführt werden.

Foto: Schräder Abgastechnologie

Details aus der allgemeinen Bauartgenehmigung von Future Therm waagrecht – so kann eine Abgasführung ausgeführt werden.
Das metallische Innenrohr kann mit einer Dämmung versehen werden.

Foto: Schräder Abgastechnologie

Das metallische Innenrohr kann mit einer Dämmung versehen werden.
Mit passenden Streifen von Thermax-Platten lässt sich das metallische Innenrohr zentrieren.

Foto: Schräder Abgastechnologie

Mit passenden Streifen von Thermax-Platten lässt sich das metallische Innenrohr zentrieren.
So sieht der Blick ins Innere eines Prüfofens aus.

Foto: Schräder Abgastechnologie

So sieht der Blick ins Innere eines Prüfofens aus.

Über den Autor

Horst Funda
ist Projektleiter bei Schräder Abgastechnologie, Kamen.

Jetzt weiterlesen und profitieren.

+ TI - Technische Isolierung E-Paper-Ausgabe – 4 Ausgaben im Jahr
+ Kostenfreien Zugang zu unserem Online-Archiv
 

Premium Mitgliedschaft

2 Monate kostenlos testen